Broad Cove Residence
- Addition + Renovation
- Energy Efficiency
- Phased Renovation/expansion
A mid-century split level ranch expanded and modernized to support open concept living, and energy efficiency.
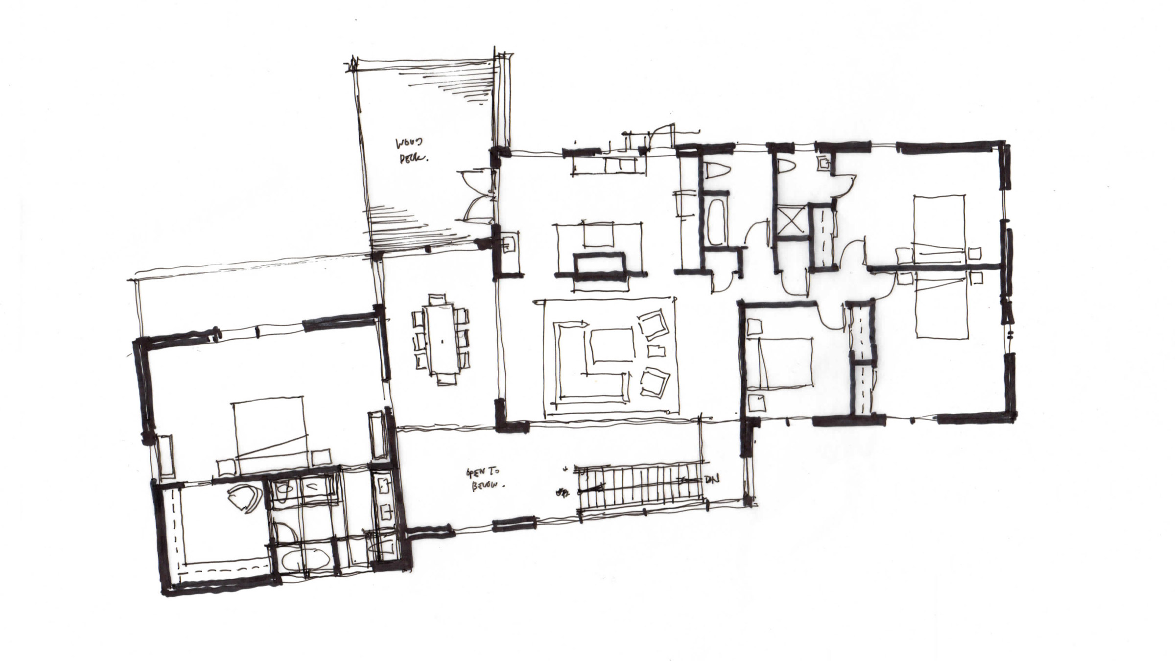
A full renovation with multiple additions was envisioned, with goals for increased space, energy efficiency, sustainability, and modern aesthetics. To minimize the construction schedule, and the construction cost, work was divided into two phases.
Phase one completed in 2016 consisted of a new welcoming two story entrance, mudroom, new two car garage, existing garage converted to art/exercise room, a large family room, and a large outdoor deck facing south.
Phase two scheduled for construction in 2021 includes improvements to the building envelope and HVAC (heating, ventilation, and air conditioning) systems, as required for improved health, comfort, and energy efficiency. In addition, the existing bedrooms and bathrooms are being renovated and expanded, and a new third floor will be added with a primary bedroom suite which includes a spacious bedroom, walk-in closet, and bathroom.
Read More- Specifications
- Achievements
Project Type
Residential
Project Location
Cape Elizabeth, Maine
Project Year
2016/2021
Project Size
3,200/3,800 sq. ft.
Design Team
Harry Hepburn, Alyssa Keating (Alumna), Leen Hariri, Sam Day
Contractor
Vindle Builders
Partners/Consultants
Becker Structural Engineers/Thornton Tomasetti, BuildingWorks
Photos
Erin Little
Press









