On The Rocks

  • Addition + Renovation
  • Energy Efficiency
  • Lake House

A 1950’s lake house “camp” transformed into an energy efficient, modern home, for year round use.

This second home is located on a rocky outcrop on the shore of Sebago Lake. The family fell in love with the Lake years ago and each summer, would rent local homes and cruise the shores for available properties. When they found this land, they knew that they had found their dream. The existing structure, however, was not what they were looking for.

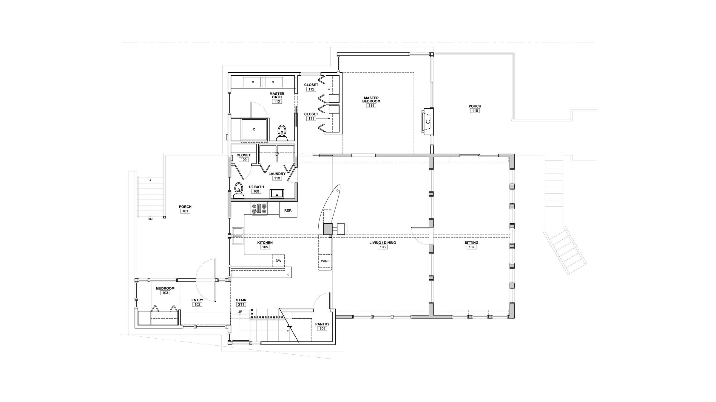
A new entry and mudroom was added on the west side, a new stair was added on the south and a primary bedroom suite was added to the north. Within the existing envelope we renovated the kitchen and two bathrooms, added a new pantry and laundry room and reconfigured the second floor to create three bedrooms.

Read More
  • Specifications

Project Type

Residential

Project Location

Raymond, Maine

Project Year

2012

Project Size

2,400 sq. ft.

Design Team

Harry Hepburn

Contractor

Riley Woodworks

Photos

Sandy Agrafiotis

The unique site

The home is perched above a large outcropping of rocks on the shores of Sebago Lake, creating a unique setting, and many special outdoor spaces to enjoy the natural surroundings. A large deck projects from the main floor of the house creating an outlook post for viewing the wildlife, and oversight of grandchildren playing in the lake below. Stairs built within the ledge cascade down towards a dock that hold water toys for adults and children alike.

Featured Projects

Ready to discuss a project of your own? Contact us